Magnifique penthouse de ±102 m², situé au dernier étage d’une copropriété contemporaine construite en 2012 et signée par l’architecte Marc Corbiau, bénéficiant d’une localisation privilégiée, à proximité immédiate du quartier Dansaert, de la place Sainte-Catherine et de la Grand-Place.
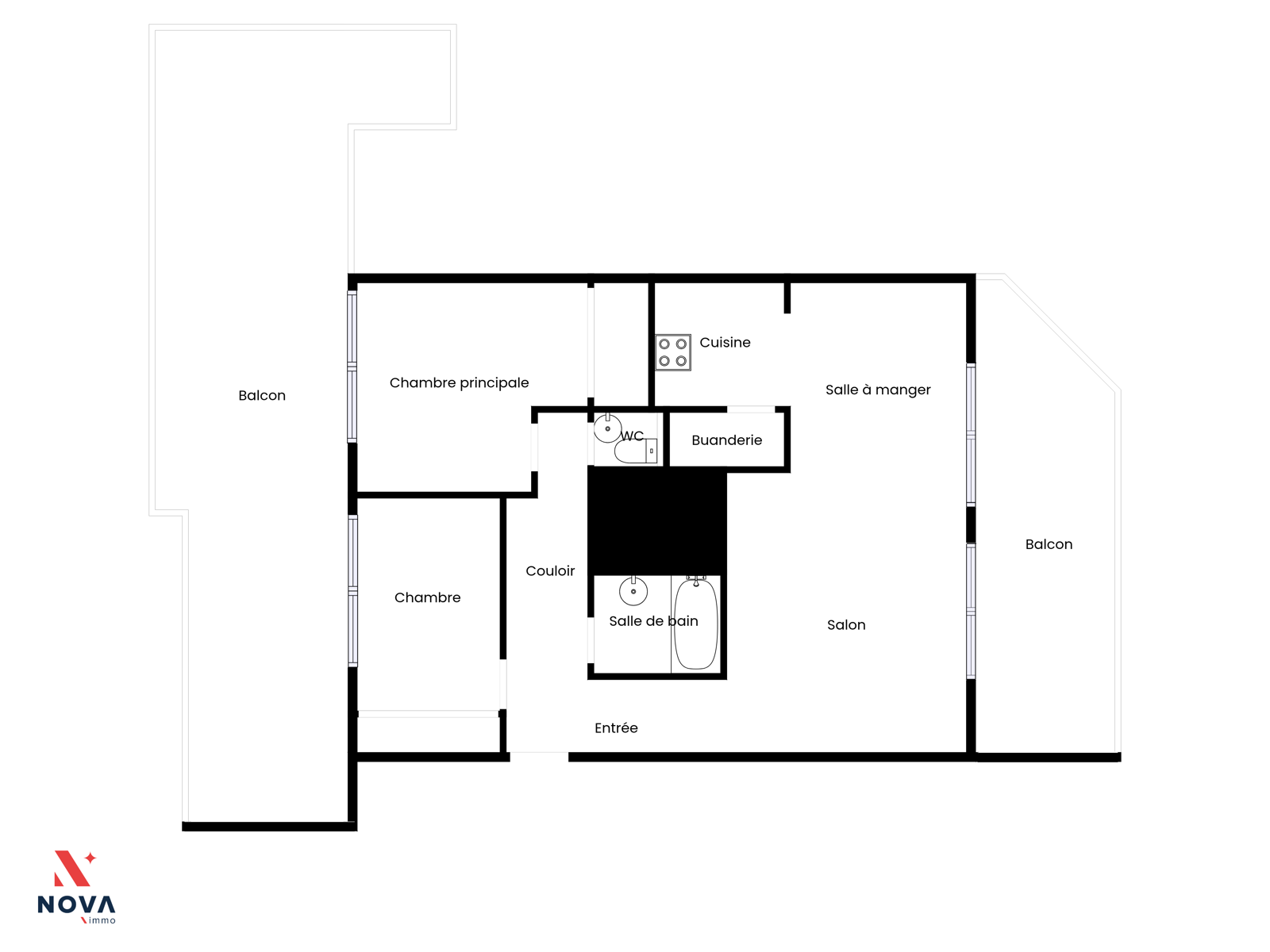
L’appartement développe un élégant espace de vie avec parquet semi-massif et cuisine entièrement équipée. Le séjour donne accès à une première terrasse de ±15 m² orientée est, offrant une vue dégagée sur le skyline emblématique de Bruxelles et ses tours de prestige, dans un environnement particulièrement calme et préservé. Une buanderie indépendante complète l’espace de vie. Le hall de nuit dessert deux chambres de ±10 m² et ±14 m² ainsi qu’une salle de bain avec baignoire et double vasque. Un WC séparé est également présent. Les deux chambres bénéficient d’un accès direct à une seconde terrasse de ±50 m² orientée ouest.
Au total, ±65 m² de terrasses réparties sur deux orientations viennent renforcer le caractère exceptionnel de ce bien.
Côté technique : PEB D, châssis aluminium double vitrage avec portes coulissantes, chaudière individuelle au gaz, électricité conforme. Aucun travaux à prévoir dans la copropriété.
Le bien dispose également d’une cave et d’un emplacement de parking (obligatoire) en option.
Pour toute information ou visite, contactez Massimo au 0496 38 26 40.




















