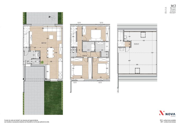
Située dans un cadre verdoyant et paisible, à deux pas du centre de Rebecq et à proximité immédiate de la E429, cette jolie maison contemporaine basse énergie, livrée clé sur porte, vous séduira par son confort et ses finitions de qualité. Elle se compose d’un hall d’entrée avec espace vestiaire et WC invités, d’un vaste et lumineux séjour de près de 40 m² avec grande baie vitrée donnant accès au jardin. À l’étage, un hall de nuit dessert 3 chambres confortables, une salle de bains équipée d’une baignoire et d’une douche à l’italienne, une buanderie séparée et un WC indépendant. Un escalier mène à un grenier aménageable de plus de 52 m² sous Velux, offrant la possibilité de créer deux chambres supplémentaires ou un espace polyvalent. Panneaux photovoltaïques et chauffage par le sol au rez-de-chaussée complètent les prestations. Vente sous régime TVA 6 % (sous conditions). Informations et visites? Contactez nous au 067/85.67.67.

























