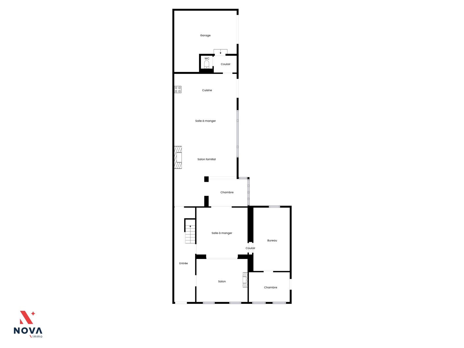
Située au cœur de Deux-Acren, élégante et spacieuse maison de maître offrant de beaux volumes habitables et un espace idéal pour profession libérale avec son entrée séparée donnant accès à la salle d’attente et au bureau de 16m². Elle se compose d’ un hall d’entrée avec accès au séjour de 37m² revêtu d’un beau parquet, d’une jolie pièce « jardin d »hiver » qui mène vers le lumineux séjour arrière avec feu cassette et cuisine ouverte tout équipée. À l’entre-sol, salle de douche avec Wc. Au 1er étage, quatre chambres (8,13, 16 et 18m²) dont la plus grande bénéficie de sa propre salle de bains récemment rénovée équipée d’une baignoire et d’une douche. A l’étage supérieur, Grenier aménagé en 5ème chambre et espaces de rangement. La propriété dispose également de deux garages, ainsi qu’une allée privative avec portail pour un stationnement sécurisé. Idéalement conçue pour conjuguer vie privée et activité professionnelle, cette demeure séduit par ses volumes, sa luminosité et son potentiel. Faire offre à partir de 295.000€. Plus d’infos et visite au 067/85.67.67.

































